Prettige feestdagen en een gelukkig 2026!

Onze kantoren zullen gesloten zijn
van woensdag 24 december tot en met maandag 4 januari!

Voor dringende gevallen kan u steeds mailen naar info@demakelaardij.be.

KOT/kamer te MECHELEN

Coxiestraat 7 bus 6 - 2800 MECHELEN

€ 499

Algemeen
Prijs
:
€ 499
Aantal badkamers
:
1
Adres
:
Coxiestraat 7 bus 6, 2800 MECHELEN
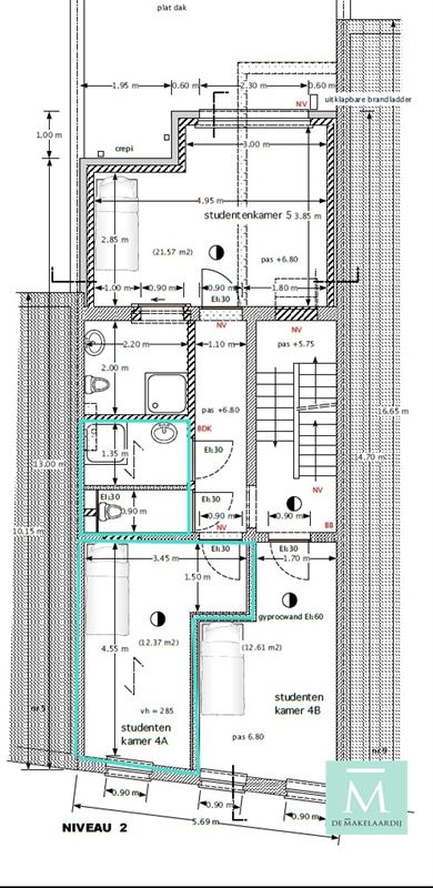
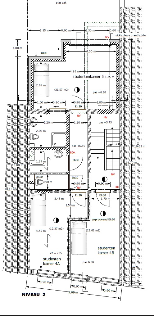
Bewoonbare opp.
:
12 m²
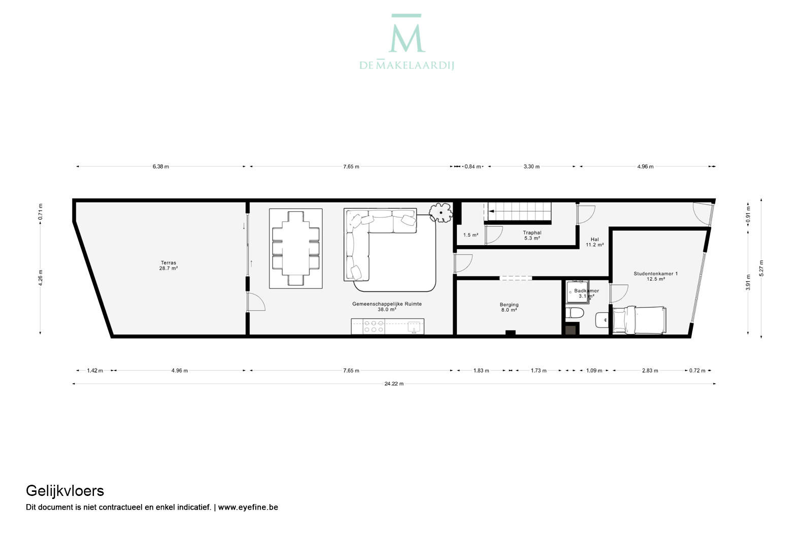
Omschrijving

STUDENTS ONLY! Gemeubelde studentenkamer in hartje Mechelen - EERSTE BEWONING NA RENOVATIE

Op zoek naar een leuke studentenkamer vlakbij het centraal station? Dan is dit DE moderne en knusse thuisbasis voor studenten die comfortabel willen wonen. Je komt terecht in een spiksplinternieuwe doch supergezellige kamer met eigen

lavabo. Een luxebadkamer en apart toilet deel je slechts met 1 andere student.

Zeer centraal gelegen vlakbij het centraal station en op wandelafstand van het centrum van de bruisende stad Mechelen, terwijl je geniet van een rustige straat vlakbij alle voorzieningen (Thomas More, winkels, bushaltes, de levendige Markt en Bruul, etc.)

Deze kamer is gelegen op de tweede verdieping en geniet van veel lichtinval door de grote raampartijen.Met deze kamer beschikt u over een eigen lavabo. De douchekamer bestaat uit een luxe douche en lavabomeubel met spiegel. Er is ook een apart toilet aanwezig.

Ter info:

·Deze heeft een totale oppervlakte van 12,37 m²

·De kamer is bemeubeld met een enkel bed (matras zelf te voorzien), een bureau en een kleerkast. Persoonlijke aankleding en detaillering laten we aan de bewoner over (binnen de grenzen van het huishoudelijke reglement).

Verder beschikt het pand over het modernste gemak en technische eisen als volgt:

·parlofonie·

·grote gemeenschappelijke ruimte op gelijkvloers met volledig uitgeruste keuken en zithoek

·gemeenschappelijke tuin waar het heerlijk vertoeven is in lente, zomer en herfst!

·ruime inpandige fietsenstalling

ENKEL voor studenten !

Maandelijkse gemeenschappelijke lasten bedragen 75 (provisie) en omvatten water, elektriciteit, internet, onderhoud gemeenschappelijke delen en vuilniszakken.

Kom zeker langs voor een bezoek en ontdek Coxiestraat 7, dé plek in Mechelen om te studeren, relaxen én connecteren.

Voor een bezoek of meer info : contacteer De Makelaardij - 015 20 20 82 - info@demakelaardij.be

 

Financiële Info
Energie certificaat
Keuringsattest elektriciteit
:
Ja, conform AREI
EPC No.20250817-000366556-RES-2
EPC
:
78 kWh/m².jaar


Stedenbouwkundige informatie
Erfgoed
:
Nee
Comfort
Verwarming
:
CV op gas
Keuken
:
Alle comfort
Beglazing
:
Hoogrendementsglas
Raamkozijn
:
pvc
Lasten
Lasten huurder
:
€ 75
Commentaar
:
water, elektricitei, internet, vuilzakken, onderhoud van de gemeenschappelijke delen

*** Opmetingen bij benadering. Het vastgoedkantoor is niet verantwoordelijk voor fouten in plannen en maten.

Algemeen
Prijs
:
€ 499
Aantal badkamers
:
1
Adres
:
Coxiestraat 7 bus 6, 2800 MECHELEN
Bewoonbare opp.
:
12 m²
Google kaart
De kaart vergroten
Uitzicht op straat