Prettige feestdagen en een gelukkig 2026!

Onze kantoren zullen gesloten zijn
van woensdag 24 december tot en met maandag 4 januari!

Voor dringende gevallen kan u steeds mailen naar info@demakelaardij.be.

Stadswoning te MECHELEN

Landbouwstraat 37 - 2800 MECHELEN

Prijs op aanvraag

Algemeen
Prijs
:
Op aanvraag
Kadastraal inkomen
:
€ 423
Aantal slaapkamers
:
2
Aantal badkamers
:
1
Adres
:
Landbouwstraat 37 , 2800 MECHELEN
Bewoonbare opp.
:
106 m²
Grondoppervlakte
:
320 m²
Bouwjaar
:
1900
Omschrijving

Te renoveren gezinswoning met mooie tuin in Mechelen-Zuid

Op een rustige en gunstige locatie in Mechelen, vlak bij het prachtige Vrijbroekpark, bevindt zich deze te renoveren woning met 2 slaapkamers en een uitgestrekte tuin. Ideaal voor wie op zoek is naar een renovatieproject met ruimte en mogelijkheden.

De woning ligt op fietsafstand van het bruisende centrum van Mechelen en in de nabijheid van winkels, scholen en openbaar vervoer.

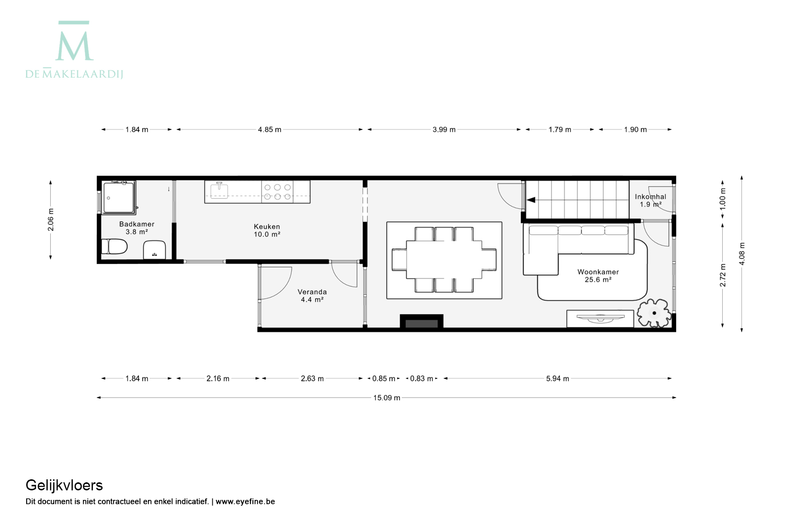
Via de inkomhal komen we in de leefruimte, die kan worden ingericht met een gezellige zithoek en een aparte eetplaats. Aansluitend bevindt zich de keuken, van waaruit u toegang heeft tot de badkamer met douche en toilet. Achteraan geniet u van een diepe en zonnige tuin.

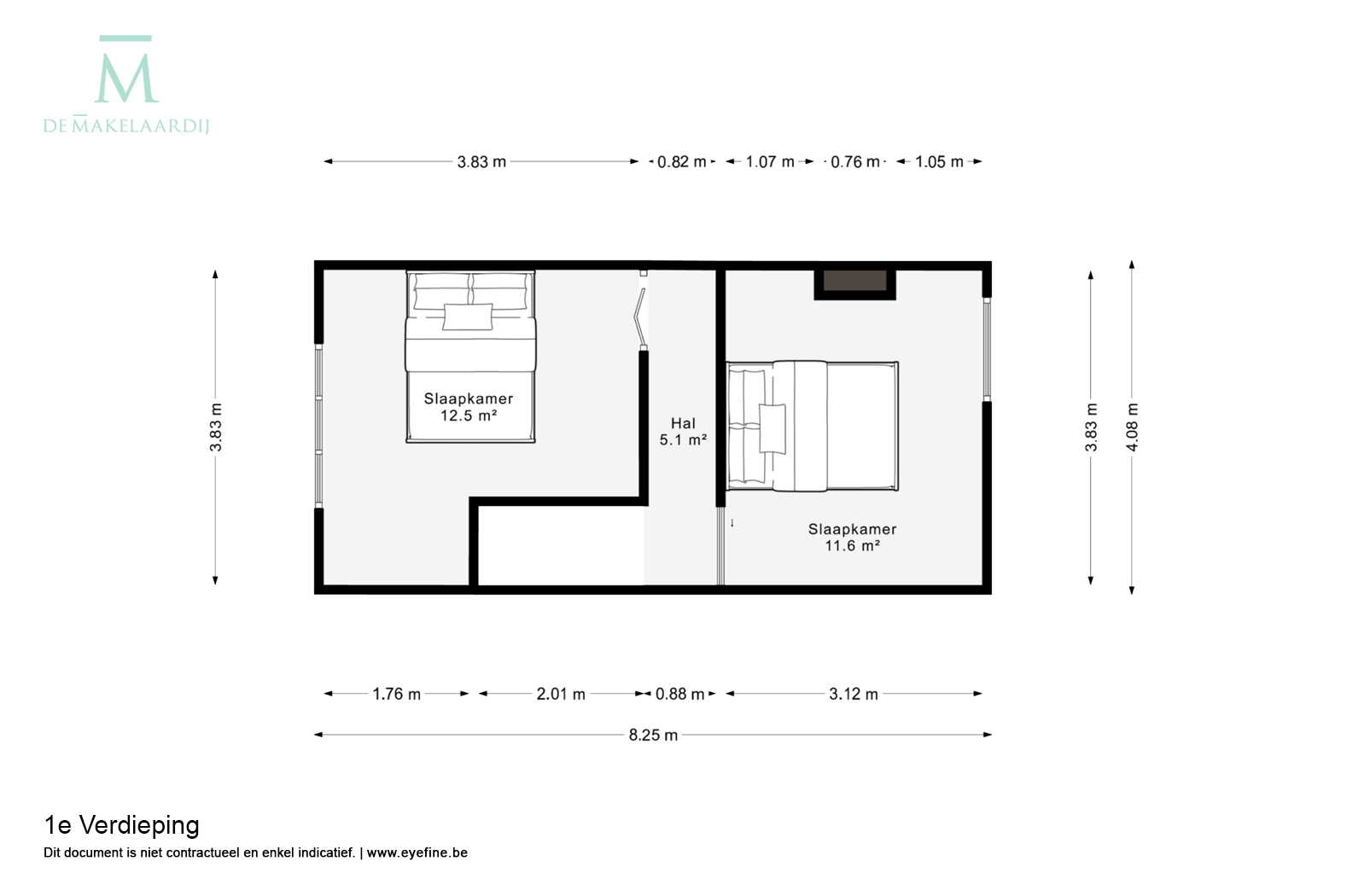
Op de eerste verdieping bevinden zich 2 volwaardige slaapkamers. Tot slot beschikt de woning ook over een zolder, wat extra opbergmogelijkheden biedt of potentieel voor uitbreiding (mits de nodige vergunningen).

Interesse in een bezoek?
Contacteer ons snel via 015/20.20.82 of info@demakelaardij.be!

 

Financiële Info
Energie certificaat
Keuringsattest elektriciteit
:
In aanvraag
EPC No.20251105-0003726908-RES-1
EPC
:
618 kWh/m².jaar


Stedenbouwkundige informatie
Voorkooprecht
:
Niet van toepassing
Bouwvergunning verkregen
:
Niet van toepassing
Dagvaarding en herstelvordering
:
Geen rechterlijke herstelmaatregel of bestuurlijke maatregel opgelegd
Verkavelingsvergunning
:
Niet van toepassing
Bestemming
:
Woongebied
G-score
:
Klasse A
P-score
:
Klasse A
Erfgoed
:
Nee
Comfort
Verwarming
:
Kachels op gas
Oriëntatie achtergevel
:
Zuidwest
Keuken
:
Kasten met toestellen
Beglazing
:
Dubbel
Lasten

*** Opmetingen bij benadering. Het vastgoedkantoor is niet verantwoordelijk voor fouten in plannen en maten.

Algemeen
Prijs
:
Op aanvraag
Kadastraal inkomen
:
€ 423
Aantal slaapkamers
:
2
Aantal badkamers
:
1
Adres
:
Landbouwstraat 37 , 2800 MECHELEN
Bewoonbare opp.
:
106 m²
Grondoppervlakte
:
320 m²
Bouwjaar
:
1900
Google kaart
De kaart vergroten
Uitzicht op straat