KOT/kamer te MECHELEN

Coxiestraat 7 bus 7 - 2800 MECHELEN

In optie

Algemeen
Prijs
:
€ 595
Aantal badkamers
:
1
Adres
:
Coxiestraat 7 bus 7, 2800 MECHELEN
Bewoonbare opp.
:
22 m²
Omschrijving

STUDENTS ONLY! Gemeubelde studentenkamer in hartje Mechelen - EERSTE BEWONING NA RENOVATIE

Op zoek naar een leuke studentenkamer met eigen sanitair? Dan is dit DE moderne en knusse thuisbasis voor studenten die comfortabel willen wonen. Je komt terecht in een spiksplinternieuwe doch supergezellige kamer met eigen sanitair, die voorzien is van alle comfort en gemak.

Zeer centraal gelegen vlakbij het centraal station en op wandelafstand van het centrum van de bruisende stad Mechelen, terwijl je geniet van een rustige straat vlakbij alle voorzieningen (Thomas More, winkels, bushaltes, de levendige Markt en Bruul, etc.)

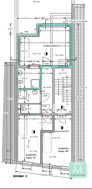
Deze kamer is gelegen op de tweede verdieping en geniet van veel lichtinval door de grote raampartijen.Met deze kamer beschikt u over een eigen luxe douchekamer met douche, lavabomeubel en toilet..

Ter info:

·Deze heeft een totale oppervlakte van 21,57 m² en heeft een ruime badkamer met douche, toilet en ingebouwde lavabo met lade en spiegel.

·De kamer is bemeubeld met een enkel bed (matras zelf te voorzien), een bureau, een bureaustoel en een kleerkast. Persoonlijke aankleding en detaillering laten we aan de bewoner over (binnen de grenzen van het huishoudelijke reglement).

Verder beschikt het pand over het modernste gemak en technische eisen als volgt:

·parlofonie·

·grote gemeenschappelijke ruimte op gelijkvloers met volledig uitgeruste keuken, zithoek

·gemeenschappelijke tuin waar het heerlijk vertoeven is in lente, zomer en herfst!

·ruime inpandige fietsenstalling

ENKEL voor studenten !

Maandelijkse gemeenschappelijke lasten bedragen 75 (provisie) en omvatten water, elektriciteit, internet, vuilniszakken en onderhoud van de gemeenschappelijke delen.

Kom zeker langs voor een bezoek en ontdek Coxiestraat 7, dé plek in Mechelen om te studeren, relaxen én connecteren.

Voor een bezoek of meer info : contacteer De Makelaardij - 015 20 20 82 - info@demakelaardij.be

 

Financiële Info
Energie certificaat
Keuringsattest elektriciteit
:
Ja, conform AREI
EPC No.20250817-000366556-RES-2
EPC
:
78 kWh/m².jaar


Stedenbouwkundige informatie
Erfgoed
:
Nee
Comfort
Verwarming
:
CV op gas
Keuken
:
Alle comfort
Beglazing
:
Hoogrendementsglas
Raamkozijn
:
pvc
Lasten
Lasten huurder
:
€ 75
Commentaar
:
water, elektriciteit, internet, vuilzakken, onderhoud van de gemeenschappelijke delen

*** Opmetingen bij benadering. Het vastgoedkantoor is niet verantwoordelijk voor fouten in plannen en maten.

Algemeen
Prijs
:
€ 595
Aantal badkamers
:
1
Adres
:
Coxiestraat 7 bus 7, 2800 MECHELEN
Bewoonbare opp.
:
22 m²
Google kaart
De kaart vergroten
Uitzicht op straat